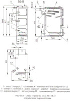
Количество: 1
- Бытовая техника
- Встраиваемая техникаВстраиваемая техника
- Техника для домаТехника для дома
- Техника для кухниТехника для кухни
- Климатическая техникаКлиматическая техника
- Аксессуары для крупной бытовой и встраиваемой техникиАксессуары для крупной бытовой и встраиваемой техники
Выберите категорию - Товары для дома и дачи
- Хозяйственные товарыХозяйственные товары
- Текстиль и постельное бельеТекстиль и постельное белье
- Садовая мебель
- Расходные материалыРасходные материалы
- Посуда, кухонная утварьПосуда, кухонная утварь
- ОсвещениеОсвещение
- Новый годНовый год
- Дача, сад и огородДача, сад и огород
- Бытовая химияБытовая химия
Выберите категорию - ЭлектроникаВыберите категорию
- Строительство и ремонт
- ЭлектрикаЭлектрика
- Реноваторы
- Затирочные машины
- Электростанции
- Электрика и светЭлектрика и свет
- СтройматериалыСтройматериалы
- Строительный инструментСтроительный инструмент
- СтанкиСтанки
- Сварочное оборудованиеСварочное оборудование
- СантехникаСантехника
- Ручной инструментРучной инструмент
- Расходные материалыРасходные материалы
- Распиловочные станки
- ПомпыПомпы
- Пневматический инструментПневматический инструмент
- ПлиткаПлитка
- Насосы бытовые
- Компрессоры
- Климатическая техникаКлиматическая техника
- Измерительный инструментИзмерительный инструмент
- Измерительное оборудованиеИзмерительное оборудование
- Заточные станки (точила)
- Дровоколы
- Грузоподъемное оборудованиеГрузоподъемное оборудование
- Гидроаккумуляторы и расширительные баки
- Вытяжная вентиляция
- ВибротехникаВибротехника
- Бетономешалки
- БензоинструментБензоинструмент
- Аккумуляторный инструментАккумуляторный инструмент
Выберите категорию - Видеотехника
- Спортивные товарыВыберите категорию
- Работа и офис
- Электромеханическое оборудованиеЭлектромеханическое оборудование
- Фаст-фуд оборудованиеФаст-фуд оборудование
- Торговля и финансыТорговля и финансы
- Оборудование для животноводства и птицеводстваОборудование для животноводства и птицеводства
- ВентиляцияВентиляция
Выберите категорию - АудиотехникаВыберите категорию
- Туризм и отдых
- Красота и здоровье
- Эпиляторы и женские электробритвы
- Электрогрелки, электроодеяла, электропростыни
- Электробритвы мужские
- Электрические зубные щетки
- Фены
- Приборы для ухода за кожей
- Напольные весы
- Машинки для стрижки волос
- Массажные кресла
- МассажерыМассажеры
- Маникюрные наборы
- Косметика и парфюмерияКосметика и парфюмерия
- Ванночки для ног
Выберите категорию


